BotzenArchitectuur
Architectuur & OntwerpIngenieur H. Botzen
LocatieHet Westland, NL
6 FOTO'S // REF: Vil
.jpg)
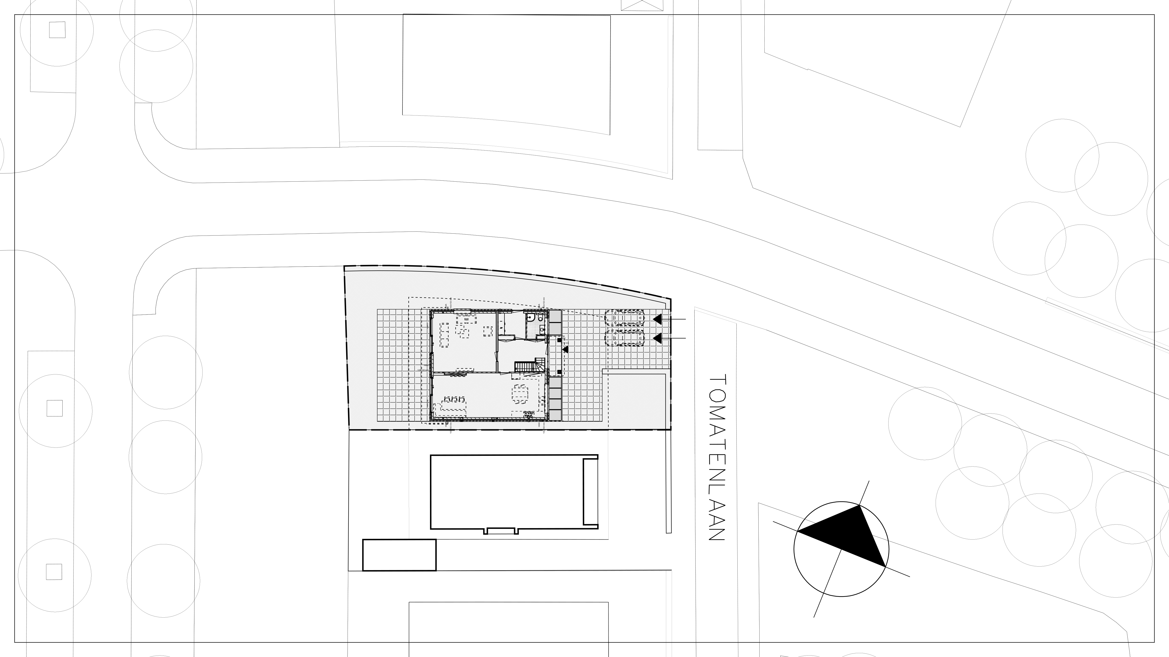
001 // Villa Tomatenlaan Den Haag kavel TL07

002 // Villa Tomatenlaan Den Haag kavel TL07

003 // Villa Tomatenlaan Den Haag kavel TL07

004 // Villa Tomatenlaan Den Haag kavel TL07

005 // Villa Tomatenlaan Den Haag kavel TL07

006 // Villa Tomatenlaan Den Haag kavel TL07