BotzenArchitectuur
Architectuur & OntwerpIngenieur H. Botzen
LocatieHet Westland, NL
Terug naar archief
Dossier: Woningbouw / villa's

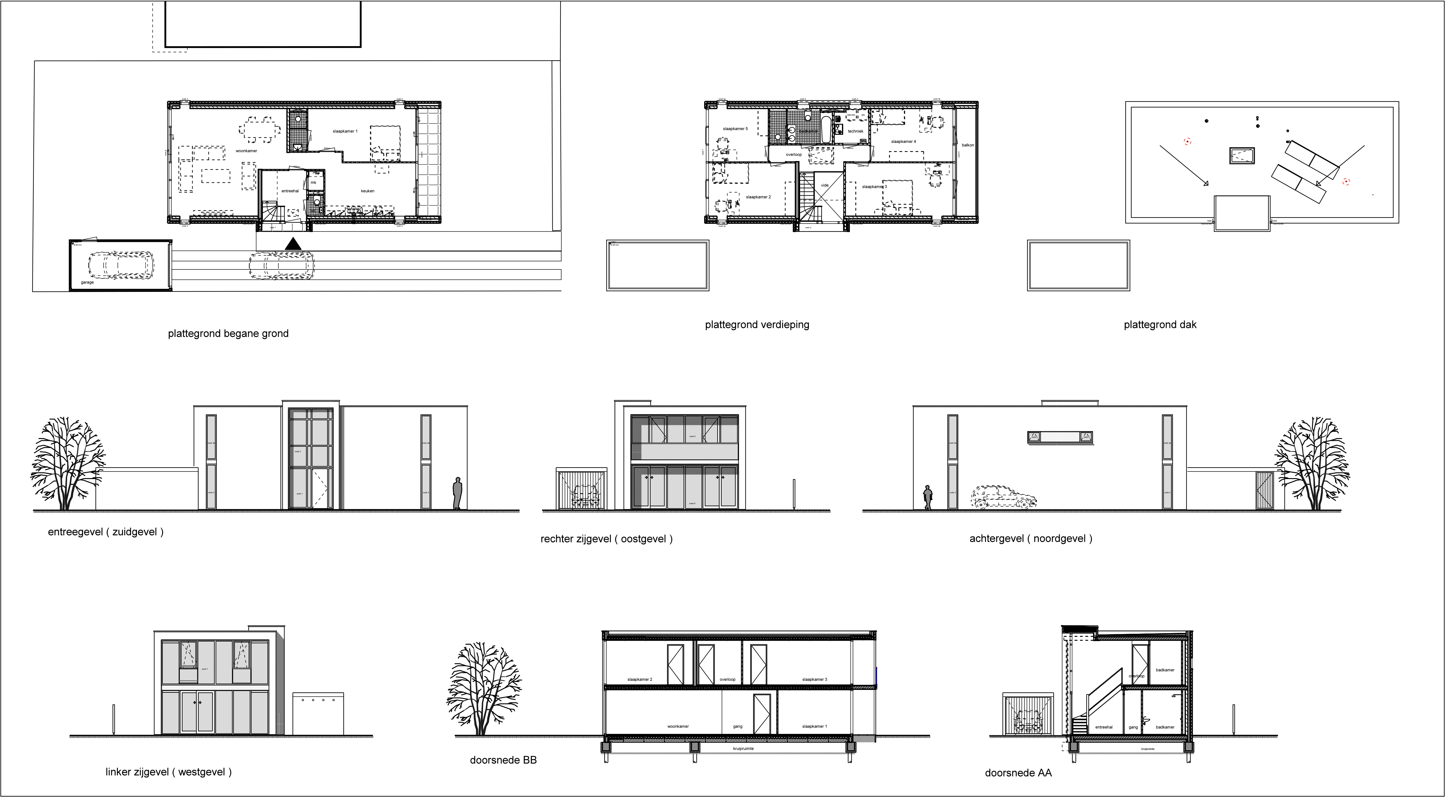
Villa Tomatenlaan Den Haag Kavel TL08

3 FOTO'S // REF: Vil
Villa Tomatenlaan Den Haag Kavel TL08 - 1
001 // Villa Tomatenlaan Den Haag Kavel TL08
Villa Tomatenlaan Den Haag Kavel TL08 - 2
002 // Villa Tomatenlaan Den Haag Kavel TL08
Villa Tomatenlaan Den Haag Kavel TL08 - 3
003 // Villa Tomatenlaan Den Haag Kavel TL08