Botzen
A
r
c
h
i
t
e
c
t
u
u
r
Werkwijze
Projecten
PROJECT STARTEN
Werkwijze
Projecten
PROJECT STARTEN
Architectuur & Ontwerp
Ingenieur H. Botzen
Locatie
Het Westland, NL
Terug naar archief
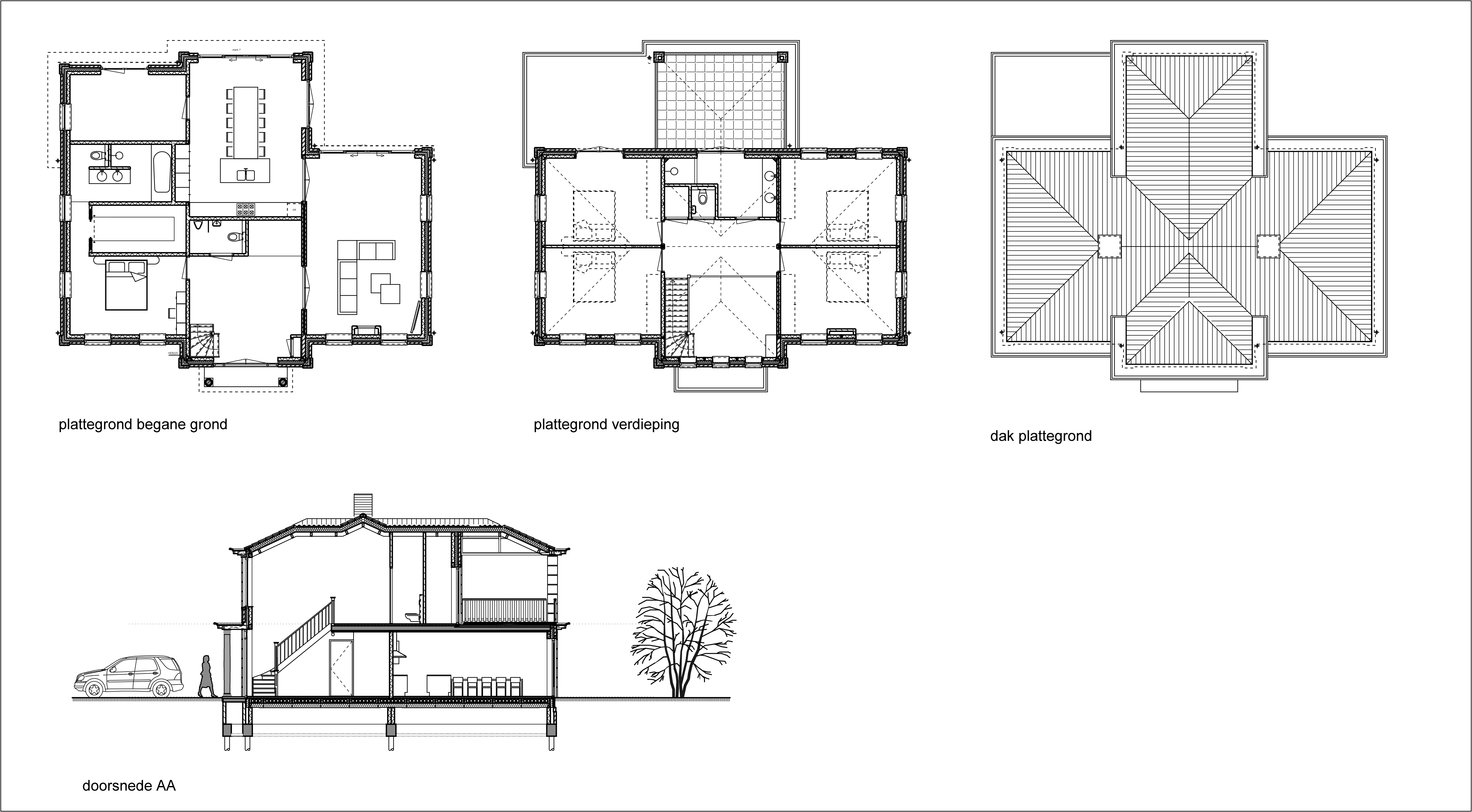
Dossier: Woningbouw / villa's
Villa Kanaalweg
3 FOTO'S // REF: Vil
001
// Villa Kanaalweg
002
// Villa Kanaalweg
003
// Villa Kanaalweg